La force d’un interlocuteur unique
Province du Hainaut
La force d’un interlocuteur unique

Témoignage : "La force d'un interlocuteur unique : mon expérience de la rénovation ultra-rapide"...

Pourquoi choisir Eklozio pour sa rénovation ? L’un de nos clients revient sur son expérience et nous explique comment son projet est passé de l’idée à la réalité en un temps record.

La priorité : un contact direct et humain...

« Pour faire simple, ce qui me tenait à cœur, c’était d’avoir un seul interlocuteur dédié. Ayant déjà travaillé avec le groupe Thomas & Piron pour ma maison, je savais que cela garantissait un contact facile et direct. »

« Avec une personne qui coordonne ses équipes, c’est un vrai luxe. C’est le premier grand atout d’Eklozio. »

En effet, en centralisant la gestion, nous supprimons les intermédiaires pour offrir une fluidité totale.

Un accompagnement de A à Z...

Au-delà du contact, c’est la prise en charge globale qui a fait la différence : « Le second atout, c’est la prise en charge complète du projet, de A à Z, avec une rapidité d’exécution incroyable. Du début à la fin, du showroom au chantier, nous sommes informés en temps et en heure de tout ce qui concerne notre rénovation. »

La rapidité : un gain de temps précieux...

Le point le plus spectaculaire dans ce projet reste la maîtrise du calendrier. Là où le marché annonçait des délais interminables, les équipes d’Eklozio ont su relever le défi.

« Les travaux ont commencé en mai et se sont terminés en septembre : c’était extrêmement rapide. Je m’étais renseigné ailleurs et les délais annoncés étaient d’un an, alors qu’avec Eklozio, tout a été réalisé en seulement trois mois. »

Prêt pour une rénovation rapide et sans mauvaise surprise ?

Galerie

Contactez-nous dès aujourd’hui pour lancer votre projet de A à Z en toute sérénité.

Partager cette réalisation

Informations

Situation
Province du Hainaut
Année de rénovation 2025
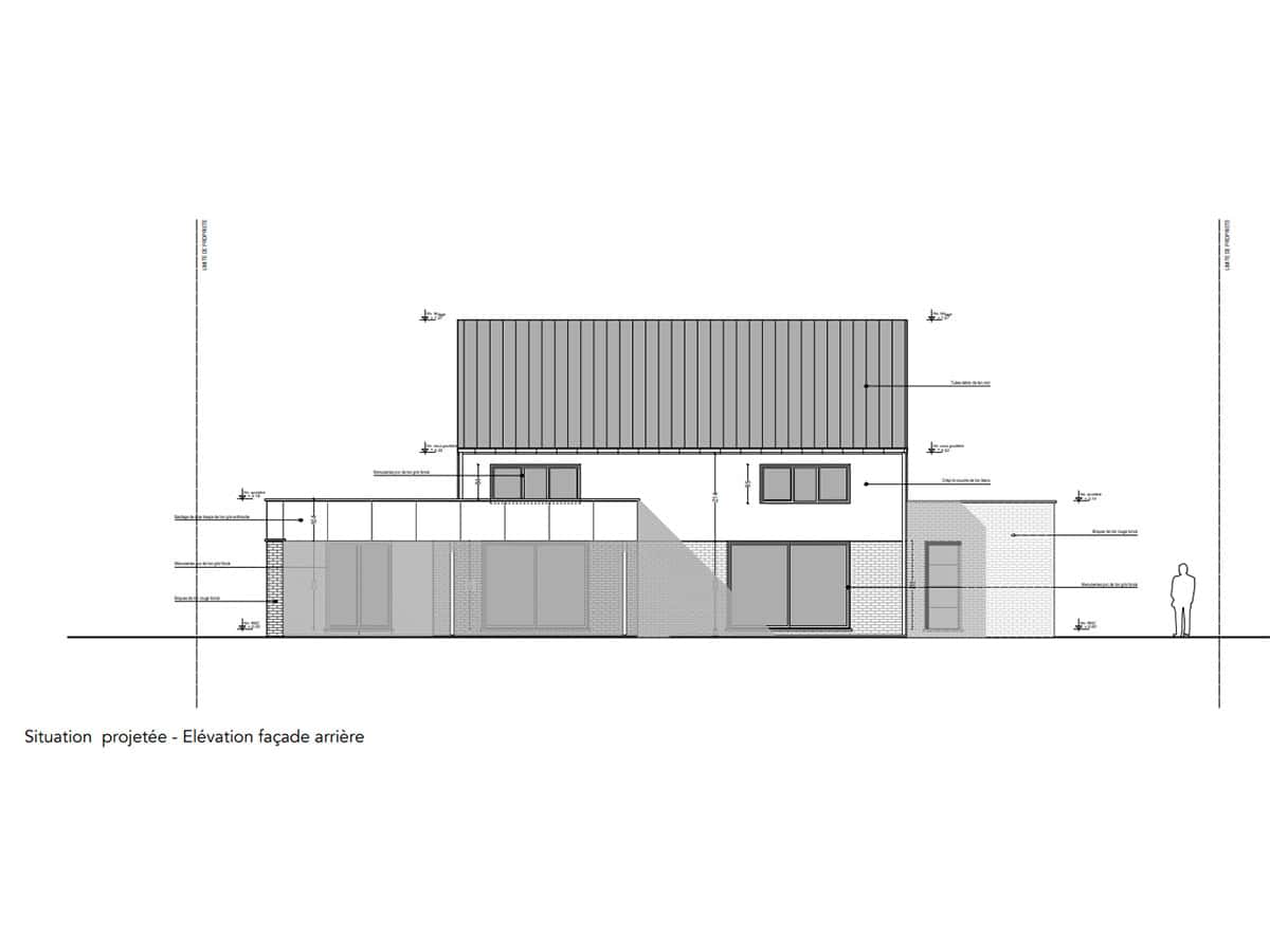
Projet Extension d’une habitation
Objectif Création d’un espace ouvert vers l’extérieur et d’une zone professionnelle
Architecte FABRIK, Chimay

Avec Eklozio,
votre maison
s'épanouit.
Et vous aussi!